About This Property
This 4-bedroom, 3-bathroom single family in North Bay (Ferris) is available for your consideration. The home features concrete and laminate and carpeted and vinyl flooring, forced air, electric heating, air exchanger, none, a apartment in basement, n/a basement.
MLS Remarks
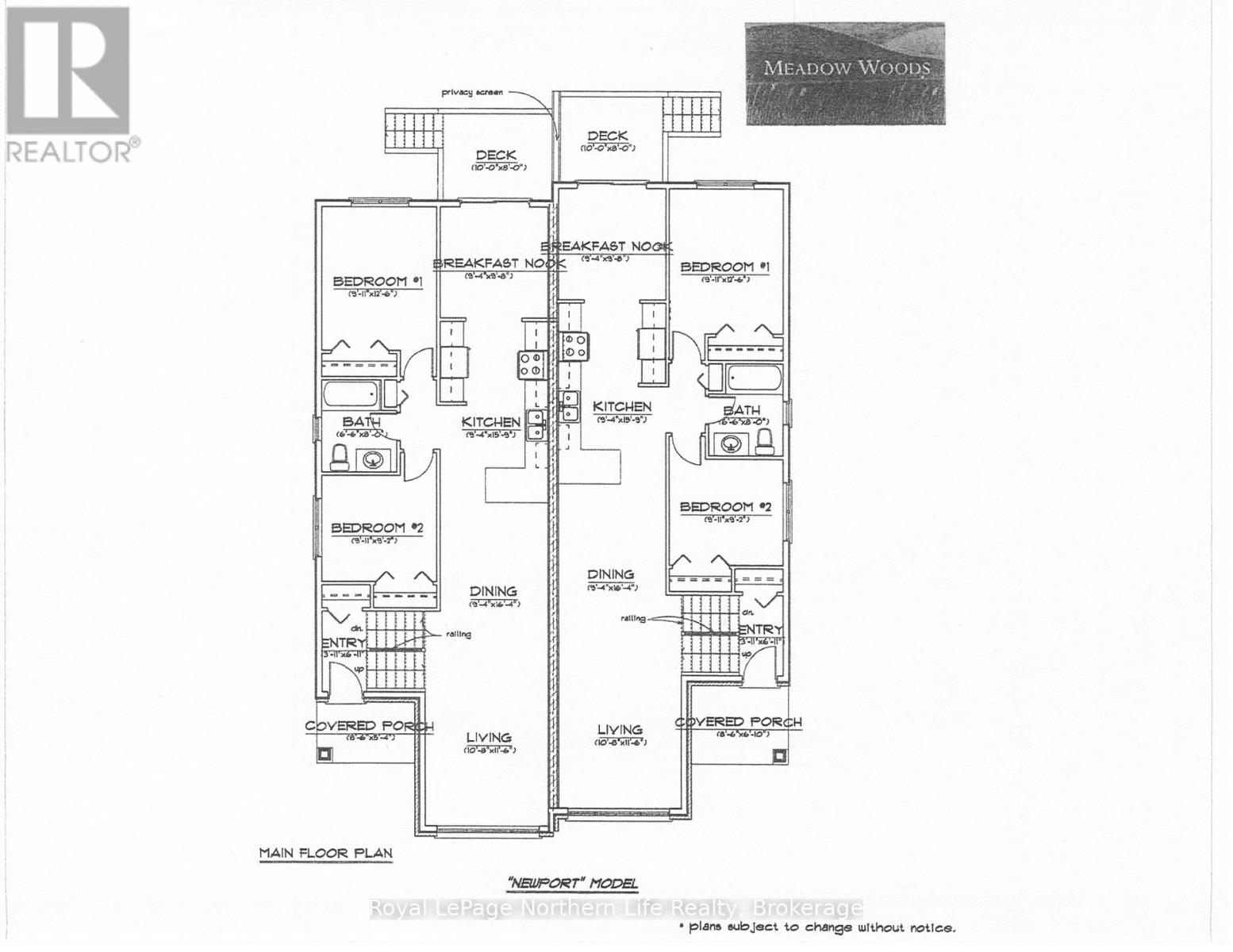
26 MEADOW WOOD COURT - NEWPORT PLAN. New quality semi detached homes built by Kenalex Builders off Booth Road at the end of Bunting Dr on the right. Meadow Wood Crt 1034 sq on main floor semi detached bungalow with legal 1 bedroom apartment in lower level. The main floor features a spacious living room, dining room blending into an open kitchen area with a peninsula and lots of counter space and cupboards. Separate breakfast nook with glass sliding doors to deck with privacy screen. 2 bedrooms and 1-4 pc also on the main floor. The lower level has rec room, 3rd bedroom and 1-3 pc and laundry room furnace room area. Rear separate entrance apartment to rent out with living room, open to kitchen area with closet for laundry setup. 1 bedroom and 1-3 pc bath. Paved parking for 3 cars on a paved driveway. Listed at $519,900.00 HST INCLUDED. HST included in purchase price if purchased as a principal residence. Plus HST of not purchased as a principal residence. (id:60351)
Overview
Interior
Exterior
Parking
Location
View larger mapListing Information
MLS#: X12585896
Information is deemed reliable but not guaranteed. Data provided by the Canadian Real Estate Association (CREA) through the Data Distribution Facility (DDF). Listing data is updated regularly but may not reflect the most current information. All information should be independently verified.
Powered by REALTOR.ca DDF
Interested in this property?
Get in touch for a private showing or more details about this listing.
Request InformationFree Home EvaluationOr call us directly
416-918-7814Mortgage Calculator
For illustration purposes only. Consult a mortgage professional for accurate rates.
Land Transfer Tax
Estimate based on Ontario LTT rates. Consult your lawyer for exact amounts.
Looking for Something Similar?
We can help you find properties matching your criteria, including exclusive listings not yet on the market.




