About This Property
This 4-bedroom, 3-bathroom single family in Pickering is available for your consideration. The home features hardwood flooring, forced air, natural gas heating, central air conditioning, a unfinished, walk-up, n/a, n/a basement, a fireplace.
MLS Remarks
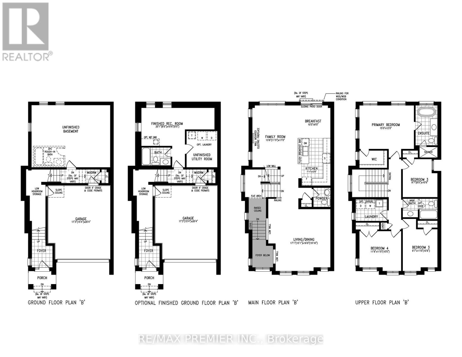
Welcome to the Peyto Lake Model by Fieldgate Homes - a brand-new corner lot detached residence in the heart of Pickering offering 2,311 sq. ft. of beautifully designed above-grade living space. This thoughtfully crafted 4-bedroom, 2.5-bathroom home blends timeless elegance with modern functionality. Soaring 9-foot ceilings on both the main and second floors create an airy, open feel, while rich hardwood flooring and a striking oak staircase add warmth and sophistication throughout. Designed with today's families in mind, the layout features a spacious open-concept family room anchored by a cozy fireplace, seamlessly connected to a refined living and dining area - ideal for both everyday living and entertaining. The gourmet kitchen is a true showpiece, boasting upgraded finishes, sleek cabinetry, and an inviting breakfast area perfect for morning coffee or hosting guests. Upstairs, you'll find four generously sized bedrooms, including a serene primary retreat complete with a walk-in closet and a spa-inspired 4-piece ensuite. The highly sought-after second-floor laundry room adds everyday convenience. The walk-up basement offers incredible potential for future customization - whether you envision an in-law suite, recreation space, or additional income opportunity. With its stunning all-brick exterior, premium finishes, and exceptional craftsmanship, the Peyto Lake Model delivers the perfect balance of luxury and practicality. Don't miss your chance to call this spectacular home yours. (id:60351)
Overview
Interior
Exterior
Parking
Location
View larger mapListing Information
MLS#: E12808786
Information is deemed reliable but not guaranteed. Data provided by the Canadian Real Estate Association (CREA) through the Data Distribution Facility (DDF). Listing data is updated regularly but may not reflect the most current information. All information should be independently verified.
Powered by REALTOR.ca DDF
Interested in this property?
Get in touch for a private showing or more details about this listing.
Request InformationFree Home EvaluationOr call us directly
416-918-7814Mortgage Calculator
For illustration purposes only. Consult a mortgage professional for accurate rates.
Land Transfer Tax
Estimate based on Ontario LTT rates. Consult your lawyer for exact amounts.
Looking for Something Similar?
We can help you find properties matching your criteria, including exclusive listings not yet on the market.

