About This Property
This 2-bedroom, 1-bathroom single family in Thunder Bay offers 1,245 sq ft of living space. Built in 2026. The home features forced air, natural gas heating, central air conditioning, air exchanger.
MLS Remarks
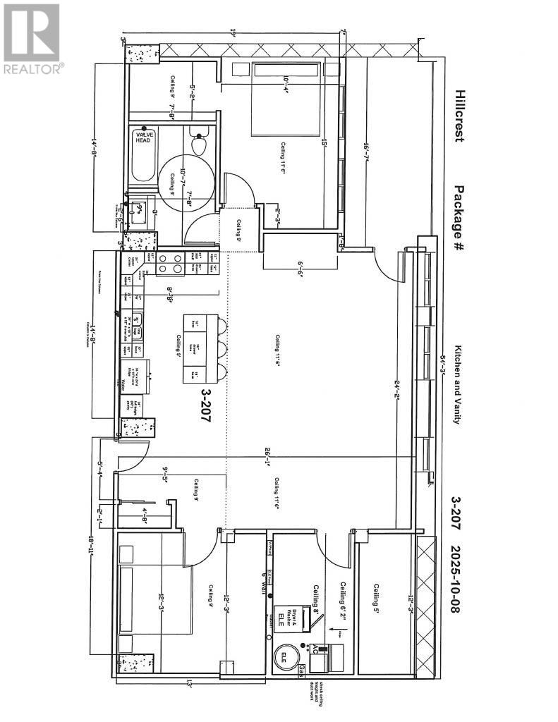
Welcome to #3207, where lifestyle meets comfort in the heart of College Heights. This west-facing 2-bedroom, 1-bath condo offers 1,245 sq. ft. of bright, open living with 10-foot ceilings, a unique layout, and an 18'11" balcony. Modern finishes include quartz countertops, quality flooring, and designer fixtures. Enjoy exceptional amenities, rooftop terrace, fitness studio, pickleball & basketball courts, theatre room, and more, all just minutes from downtown Thunder Bay. (id:60351)
Overview
Interior
Fees & Taxes
Location
View larger mapListing Information
MLS#: TB253344
Information is deemed reliable but not guaranteed. Data provided by the Canadian Real Estate Association (CREA) through the Data Distribution Facility (DDF). Listing data is updated regularly but may not reflect the most current information. All information should be independently verified.
Powered by REALTOR.ca DDF
Interested in this property?
Get in touch for a private showing or more details about this listing.
Request InformationFree Home EvaluationOr call us directly
416-918-7814Mortgage Calculator
For illustration purposes only. Consult a mortgage professional for accurate rates.
Land Transfer Tax
Estimate based on Ontario LTT rates. Consult your lawyer for exact amounts.
Looking for Something Similar?
We can help you find properties matching your criteria, including exclusive listings not yet on the market.



