About This Property
This retail in Timmins (MTJ - 101 West) offers 25,000 sq ft of living space on a 6.22 sq ft lot. The home features forced air, natural gas heating, fully air conditioned.
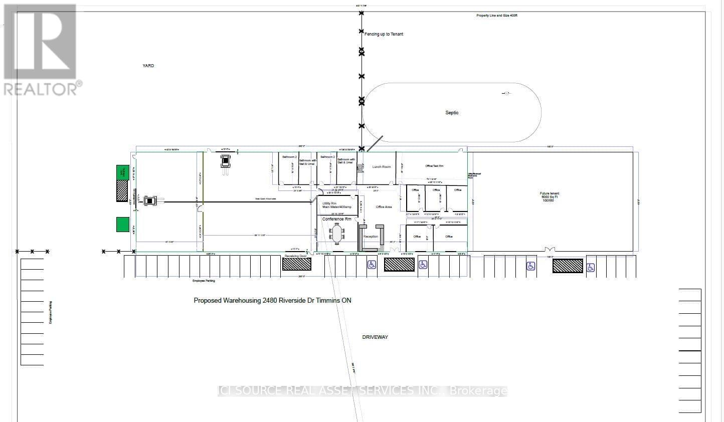
MLS Remarks
Landlord looking to find a client to build for, Office, warehouse, garage etc. Size from 10,000 to 25,000 Sq ft. Property is half developed already with long term tenants. Mining, or related to mining industry is preferred for a new client. Very clean area, easy access, all fenced *For Additional Property Details Click The Brochure Icon Below* (id:60351)
Overview
Interior
Fees & Taxes
Location
View larger mapListing Information
MLS#: T12304068
Information is deemed reliable but not guaranteed. Data provided by the Canadian Real Estate Association (CREA) through the Data Distribution Facility (DDF). Listing data is updated regularly but may not reflect the most current information. All information should be independently verified.
Powered by REALTOR.ca DDF
Interested in this property?
Get in touch for a private showing or more details about this listing.
Request InformationFree Home EvaluationOr call us directly
416-918-7814Looking for Something Similar?
We can help you find properties matching your criteria, including exclusive listings not yet on the market.

