About This Property
This 4-bedroom, 4-bathroom single family in Thorold (Confederation Heights) is available for your consideration. The home features forced air, natural gas heating, central air conditioning, a unfinished, full basement.
MLS Remarks
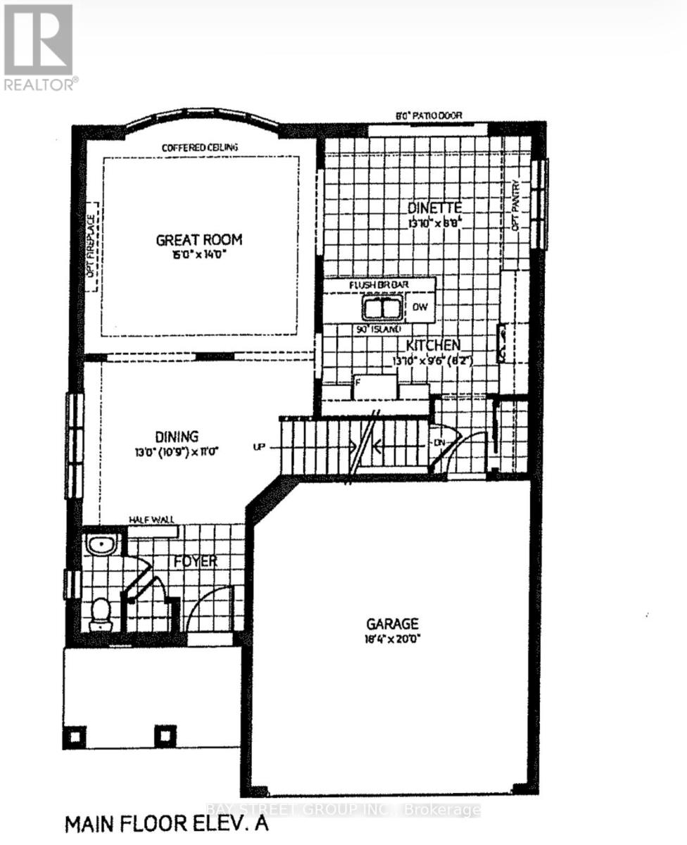
Welcome to this stunning carpet-free detached home in the Confederation Heights neighborhood, just a 5-minute drive to Brock University. This spacious property features a double car garage and a 4-car driveway, providing ample parking. The main floor offers 9-ft ceilings and a bright open-concept layout with a Great Room, along with a modern kitchen complete with a center island and stainless-steel appliances-perfect for everyday living and entertaining. Upstairs boasts four generously sized bedrooms, including a primary suite with a private ensuite, a second bedroom with its own ensuite, and two additional bedrooms connected by a convenient Jack-and-Jill bathroom. With numerous upgrades throughout and close proximity to Brock University, public transit, schools, hospital, and other amenities, this home offers exceptional comfort, style, and convenience. Move in and enjoy! * Tenants to pay utilities (hydro, water and gas) and hot water heater rental.* (id:60351)
Overview
Interior
Exterior
Parking
Location
View larger mapListing Information
MLS#: X12813944
Information is deemed reliable but not guaranteed. Data provided by the Canadian Real Estate Association (CREA) through the Data Distribution Facility (DDF). Listing data is updated regularly but may not reflect the most current information. All information should be independently verified.
Powered by REALTOR.ca DDF
Interested in this property?
Get in touch for a private showing or more details about this listing.
Request InformationFree Home EvaluationOr call us directly
416-918-7814Looking for Something Similar?
We can help you find properties matching your criteria, including exclusive listings not yet on the market.




