About This Property
This 2-bedroom, 1-bathroom single family in Richmond Hill (North Richvale) is available for your consideration. The home features laminate flooring, forced air, natural gas heating, central air conditioning, a none basement. Highlights include a indoor pool pool.
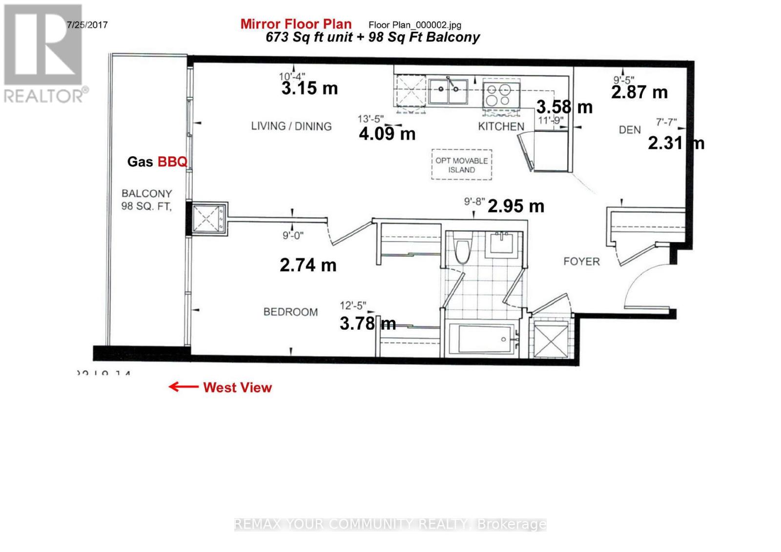
MLS Remarks
"NEW COMER WELCOME ". Upgraded Fully furnished , New Paint, 1 bedroom +den ( can be used as 2nd bedroom), luxury grand palace condominium, steps to transit, practical layout, balcony with gas bbq, modern kitchen with granite counter top, /s appliances, 9' ceiling, floor to ceiling windows, close to public transit, hill crest mall, library, shopping, (St. Theresa of Lisieux catholic high school catholic school) and more.(due to health issues please no pets, no smoking). (id:60351)
Overview
Interior
Exterior
Parking
Location
View larger mapListing Information
MLS#: N12722068
Information is deemed reliable but not guaranteed. Data provided by the Canadian Real Estate Association (CREA) through the Data Distribution Facility (DDF). Listing data is updated regularly but may not reflect the most current information. All information should be independently verified.
Powered by REALTOR.ca DDF
Interested in this property?
Get in touch for a private showing or more details about this listing.
Request InformationFree Home EvaluationOr call us directly
416-918-7814Looking for Something Similar?
We can help you find properties matching your criteria, including exclusive listings not yet on the market.




