About This Property
This 0-bedroom, 0-bathroom vacant land in Caledon is available for your consideration. The home features other heating, a none basement.
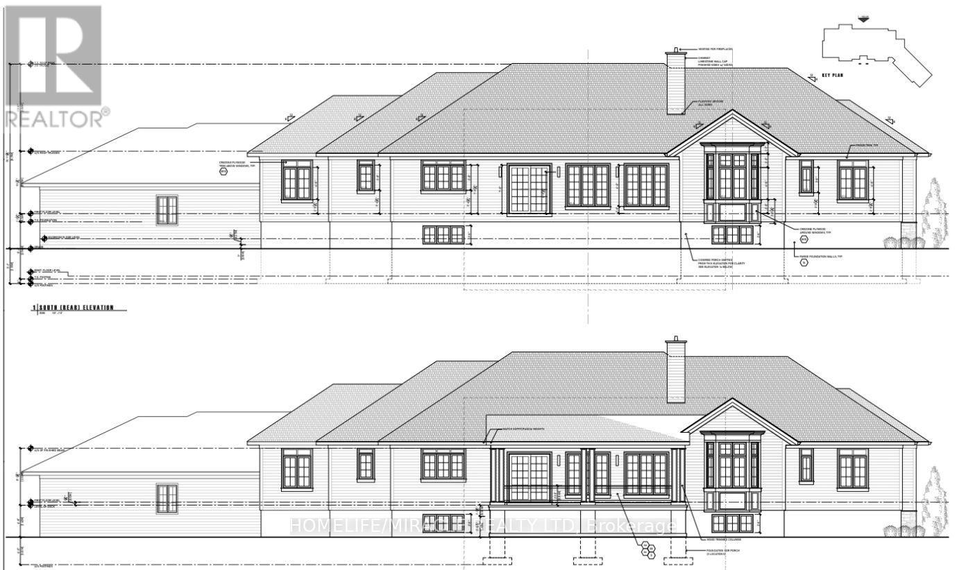
MLS Remarks
Rare build-ready opportunity in the Town of Caledon.Set on a picturesque 12+ acre parcel, Lot 22 Hurontario is offered as vacant land with the foundation and basement already completed and approved architectural plans for an impressive 3,234 sq. ft. custom bungalow. The property offers exceptional privacy and tranquility, making it an ideal setting for a refined country estate.The approved plans envision a thoughtfully designed luxury residence featuring three bedrooms and four bathrooms, expansive principal rooms, and a generous family living area ideal for both everyday comfort and entertaining. A separate chef's kitchen has been incorporated to provide additional prep and cooking space. Design highlights include soaring ceilings, a large covered rear porch, and premium finishes throughout.Extensive planning, design, and approval work has already been completed, providing a streamlined path to construction with the opportunity for buyer review and customization.Property is being sold as vacant land with approved plans. Buyers are responsible for completing their own due diligence with respect to zoning, permits, development charges, construction requirements, and intended use. Images are architectural renderings only. No dwelling has been constructed beyond the existing foundation. (id:60351)
Overview
Interior
Parking
Fees & Taxes
Location
View larger mapListing Information
MLS#: W12781610
Information is deemed reliable but not guaranteed. Data provided by the Canadian Real Estate Association (CREA) through the Data Distribution Facility (DDF). Listing data is updated regularly but may not reflect the most current information. All information should be independently verified.
Powered by REALTOR.ca DDF
Interested in this property?
Get in touch for a private showing or more details about this listing.
Request InformationFree Home EvaluationOr call us directly
416-918-7814Mortgage Calculator
For illustration purposes only. Consult a mortgage professional for accurate rates.
Land Transfer Tax
Estimate based on Ontario LTT rates. Consult your lawyer for exact amounts.
Looking for Something Similar?
We can help you find properties matching your criteria, including exclusive listings not yet on the market.




