About This Property
This 3-bedroom, 3-bathroom single family in Scugog is available for your consideration. The home features hardwood flooring, forced air, propane heating, none, a unfinished, n/a basement, a fireplace.
MLS Remarks
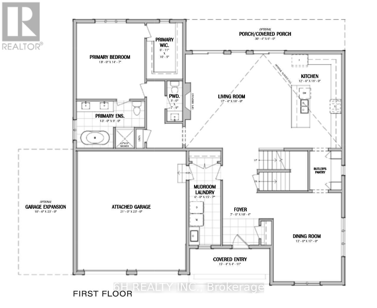
Introducing The Forestglen, a 2,405 sq. ft. residence that masterfully balances grand entertaining spaces with the ease of main-floor living. The home makes a striking first impression with a timeless brick and stone exterior and a covered front entry. Inside, the heart of the home is a sun-drenched, open-concept living room and kitchen-complete with a central island and a butler's pantry leading to a formal dining room. The primary suite is a private main-level retreat, featuring a generous walk-in closet and a spa-like ensuite with a double vanity and dedicated soaking tub. Upstairs, the functionality continues with two additional bedrooms, each uniquely designed with its own private walk-in closet to ensure maximum privacy for family or guests. Practicality is built-in with a dedicated mudroom and laundry suite located off the garage, which offers an optional three-car expansion to accommodate larger vehicles or additional storage. (id:60351)
Overview
Interior
Exterior
Parking
Location
View larger mapListing Information
MLS#: E12800232
Information is deemed reliable but not guaranteed. Data provided by the Canadian Real Estate Association (CREA) through the Data Distribution Facility (DDF). Listing data is updated regularly but may not reflect the most current information. All information should be independently verified.
Powered by REALTOR.ca DDF
Interested in this property?
Get in touch for a private showing or more details about this listing.
Request InformationFree Home EvaluationOr call us directly
416-918-7814Mortgage Calculator
For illustration purposes only. Consult a mortgage professional for accurate rates.
Land Transfer Tax
Estimate based on Ontario LTT rates. Consult your lawyer for exact amounts.
Looking for Something Similar?
We can help you find properties matching your criteria, including exclusive listings not yet on the market.


