About This Property
This 3-bedroom, 3-bathroom single family in Oakville (GA Glen Abbey) is available for your consideration. The home features tile and hardwood flooring, forced air, natural gas heating, central air conditioning, ventilation system, a unfinished, n/a basement, a fireplace.
MLS Remarks
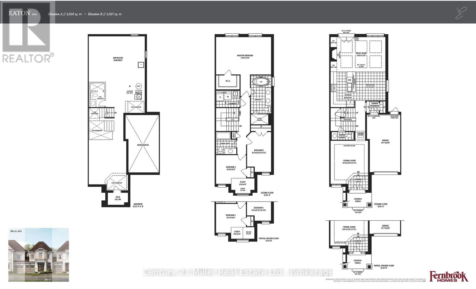
An exclusive chance to purchase a pre-construction townhome in the highly sought-after Glen Abbey Encore community in Oakville. This 2-storey townhome with a deck that overlooks your backyard offers a thoughtfully designed floor plan with 2,028 sq. ft. of living space, set on a 25' wide lot with a 1-car garage; ideal for growing families or those seeking a modern, functional layout. The townhome will offer 3 bedrooms and 2.5 bathrooms. Step inside to a formal room leading to an open-concept breakfast room and great room with a gas fireplace. The kitchen will have quartz countertops, a central island, and a Bosch Appliance package. Upstairs, the primary suite is a true retreat, complete with a large walk-in closet and an ensuite showcasing a soaker tub and a glass shower. The upper level also offers a convenient laundry room. The basement will have a rough-in for a future bathroom, with potential for a separate suite. Premium finishes are included, such as oak hardwood floors, porcelain tile, coffered ceilings, and 9' smooth ceilings on the main level. Purchasers may have the opportunity to customize interior selections. Occupancy is projected for Summer 2027, and the home will be covered by a 7-Year Tarion Warranty for added peace of mind. Act now to reserve this lot, a limited release in one of Oakville's most desirable master-planned communities! (Block 7, Lot 8, Eaton Model - Elevation A). (id:60351)
Overview
Interior
Exterior
Parking
Location
View larger mapListing Information
MLS#: W12741894
Information is deemed reliable but not guaranteed. Data provided by the Canadian Real Estate Association (CREA) through the Data Distribution Facility (DDF). Listing data is updated regularly but may not reflect the most current information. All information should be independently verified.
Powered by REALTOR.ca DDF
Interested in this property?
Get in touch for a private showing or more details about this listing.
Request InformationFree Home EvaluationOr call us directly
416-918-7814Mortgage Calculator
For illustration purposes only. Consult a mortgage professional for accurate rates.
Land Transfer Tax
Estimate based on Ontario LTT rates. Consult your lawyer for exact amounts.
Looking for Something Similar?
We can help you find properties matching your criteria, including exclusive listings not yet on the market.


