About This Property
This 3-bedroom, 3-bathroom single family in Niagara Falls (Dorchester) is available for your consideration. The home features forced air, natural gas heating, central air conditioning, a unfinished, full, separate entrance, walk out, walk-up, n/a, n/a, n/a, n/a basement.
MLS Remarks
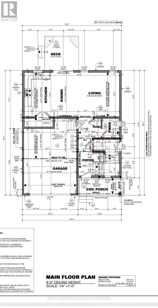
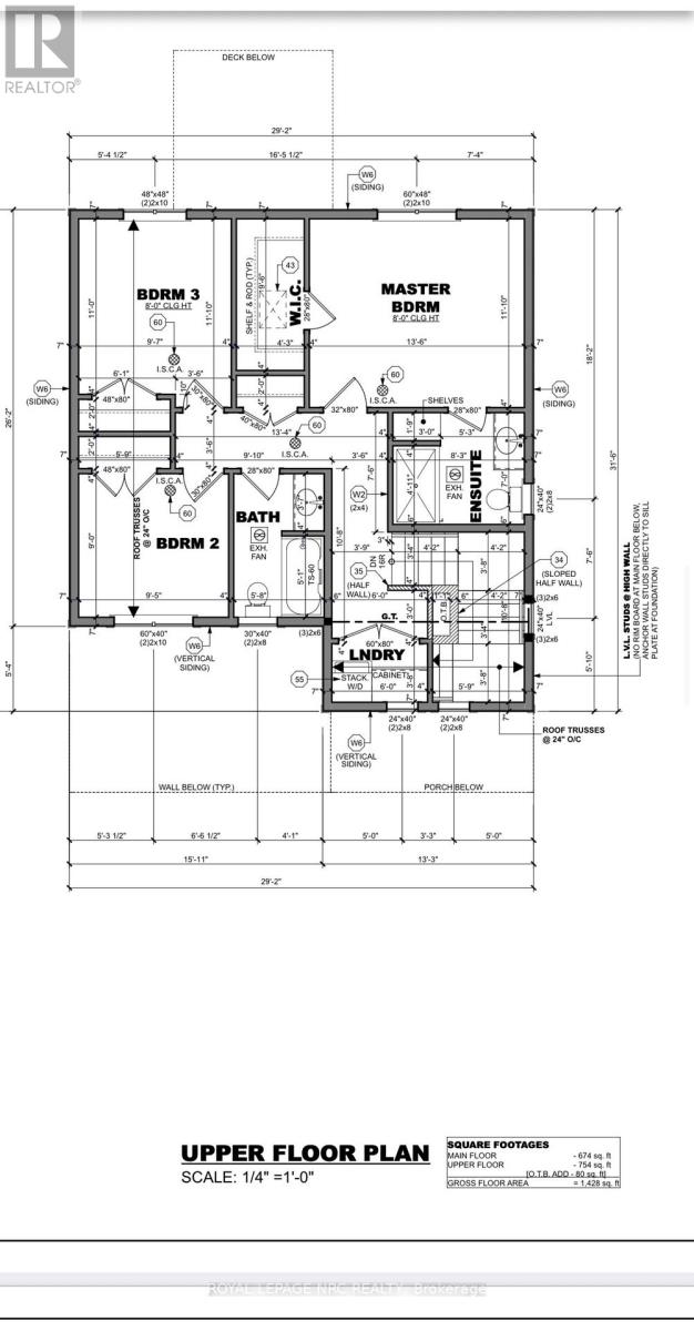
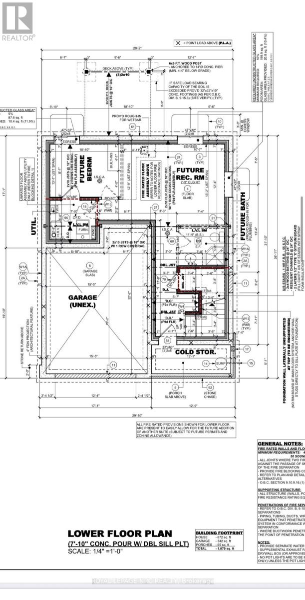
Seize the chance to create your dream home with this exciting new build opportunity! This 1,420 sq. ft. two-storey home is to be built based on the attached floor plan, offering a well-designed layout for modern living.A major bonus is the separate entrance to the basement, providing excellent potential for a future in-law suite or basement apartment.Located in a fantastic area, this property comes with the peace of mind of a Tarion warranty. (id:60351)
Overview
Interior
Exterior
Parking
Location
View larger mapListing Information
MLS#: X12797676
Information is deemed reliable but not guaranteed. Data provided by the Canadian Real Estate Association (CREA) through the Data Distribution Facility (DDF). Listing data is updated regularly but may not reflect the most current information. All information should be independently verified.
Powered by REALTOR.ca DDF
Interested in this property?
Get in touch for a private showing or more details about this listing.
Request InformationFree Home EvaluationOr call us directly
416-918-7814Mortgage Calculator
For illustration purposes only. Consult a mortgage professional for accurate rates.
Land Transfer Tax
Estimate based on Ontario LTT rates. Consult your lawyer for exact amounts.
Looking for Something Similar?
We can help you find properties matching your criteria, including exclusive listings not yet on the market.



